Belk Design and Marketing LLC
Cart

Quick Contact: 830-730-0246  
        cart
Details | See Reverse | 3D | Modify | Back to Search
Front View Front Rendering Rear Elevation Garage-Pool House First Floor Plan Second Floor Plan
© copyright by designer

Plan: 99-108 Belisarda

Plan Specification
Total Square Footage: 10,838
Main Level: 7,539
Second Level: 3,299
Bedrooms: 5
Baths: 6 Half: 3
Garages: 4
Width/Depth: 143 ft / 128 ft
Foundation: Basement, Crawl Space, Daylight Basement, Slab
© copyright by designer 
Garage-Pool House:
Garage-Pool House
© copyright by designer 
First Floor Plan:
First Floor Plan
© copyright by designer 
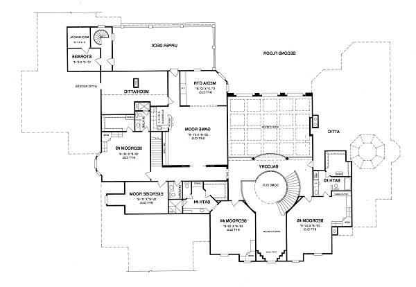
Second Floor Plan:
Second Floor Plan
House Plan Pricing
$2,400.00
$7,800.00
$9,795.00
Foundation Options
$0.00
$650.00
Additional Plan Options
$625.00
$600.00
$250.00
$250.00
Plan Details
General House Information
2
Number of Stories:
143' 4"
Width:
128' 8"
Depth:
Single
Dwelling Number:
Exterior Style
Luxury
OtherCustom
Number of Rooms
5
Bedrooms:
6
Full Baths:
3
Half Baths:
Finished Square Footage
7,539 Sq. Ft.
Main Level:
3,299 Sq. Ft.
Upper Level:
10,838 Sq. Ft.
Total:
Unfinished Square Footage
1630 Sq. Ft.
Garage:
1008 Sq. Ft.
Porch:
Foundation
Basement
Crawl Space
Daylight Basement
Slab
Framing Information
Stick
Roof Framing:
2x4
Exterior Wall Framing:
Insulation (R)
0
Exterior Wall:
0
Interior Wall:
0
Ceiling:
0
Floor:
GARAGE
Front
Garage Location:
4
Garage Size:
Attached
Feature:
Front-entry
Feature:
Side-entry
Feature:
Key Features
• Double Vanity Sink
• Guest Suite
• His and Hers Master Closets
• Master Bdrm Main Floor
• Separate Tub and Shower
• Sitting Area
• Split Bedrooms
• Walk-in Closet
• Covered Rear Porch
• Deck
• Rear Porch
• Wraparound Porch
• Basement
• Crawlspace
• Slab
• 2 Story Volume
• Dining Room
• Exercise Room
• Family Room
• Fireplace
• Formal LR
• Foyer
• Home Office
• Laundry 1st Fl
• Library/Media Rm
• Loft / Balcony
• Open Floor Plan
• Rec Room
• Storage Space
• Vaulted Ceilings
• Workshop
• Butler's Pantry
• Kitchen Island
• Nook / Breakfast Area
• Peninsula / Eating Bar
• Walk-in Pantry
Copyright © Belk Design and Marketing LLC. All rights reserved. Belk Design and Marketing would like to take this opportunity to clarify the copyright laws for house plans. Copyright and licensing of house plans exist to protect all parties. It respects and supports the intellectual property of the original architect or designer. Belk Design and Marketing holds the copyrights to all images and house plans on this site. The law prevents anyone from reproducing or reusing illustrations, house plans or working drawings by any means without written permission from Belk Design and Marketing. The purchase of a set of house plans does not transfer any copyright or ownership interest except for a one-time license for the purchaser to build the home. Thank you for allowing Belk Design and Marketing the opportunity to be part of your home plan dream.