Cart
Quick Contact:
830-730-0246
Belk Design and Marketing LLC
Advanced Search
Browse Collections
Services
Texas Collection
About Us
Contact Us
Plan Details
|
Print Plan
|
Modify Plan
|
Reverse Plan
|
Return to Your Search
Details
|
See Reverse
|
3D
|
Modify
|
Back to Search
See all 4 photos and rear view
© copyright by designer
Plan: 56-04 Beauville
Plan Specification
Total Square Footage:
5,669
Main Level:
3,802
Second Level:
1,867
Bedrooms:
3
Baths:
3 Half: 1
Garages:
4
Width/Depth:
126 ft / 116 ft
Foundation:
Basement, Crawl Space, Daylight Basement, Slab
View typical construction drawing >
© copyright by designer
First Floor Plan:
© copyright by designer
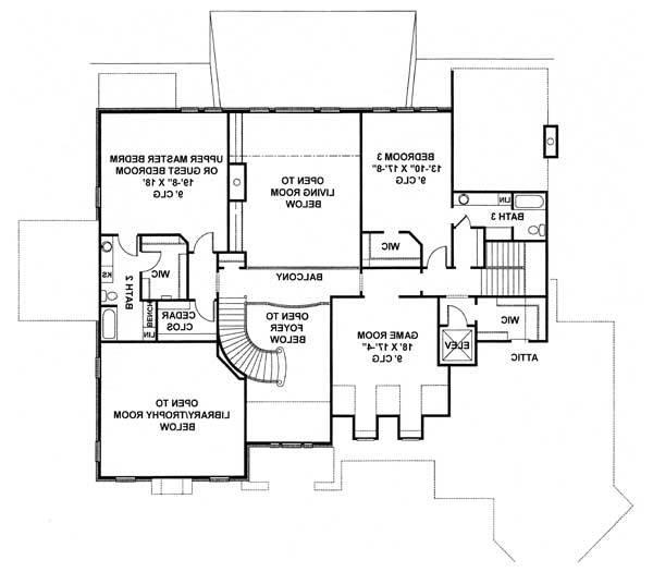
Second Floor Plan:
Purchase Plans
House Plan Pricing
PDF Bid Set
$1,895.00
PDF Single Build
$2,995.00
PDF + MOD License Single Build
$3,895.00
CAD FILE Plus PDF
$5,760.00
More details about our plan packages
Foundation Options
Slab
$0.00
Crawl Space
$425.00
Daylight Basement
$450.00
Basement
$500.00
Additional Plan Options
Full Reverse
$400.00
2x6 Exterior Walls
$375.00
Add 1 Garage Bay
$250.00
Remove 1 Garage Bay
$250.00
Plan Details
General House Information
2
Number of Stories:
126' 2"
Width:
116' 8"
Depth:
Single
Dwelling Number:
Exterior Style
Luxury
Number of Rooms
3
Bedrooms:
3
Full Baths:
1
Half Baths:
Finished Square Footage
3,802 Sq. Ft.
Main Level:
1,867 Sq. Ft.
Upper Level:
5,669 Sq. Ft.
Total:
Unfinished Square Footage
1580 Sq. Ft.
Garage:
814 Sq. Ft.
Porch:
Foundation
Basement
Crawl Space
Daylight Basement
Slab
Framing Information
Stick
Roof Framing:
2x4
Exterior Wall Framing:
Insulation (R)
0
Exterior Wall:
0
Interior Wall:
0
Ceiling:
0
Floor:
GARAGE
Front
Garage Location:
4
Garage Size:
Attached
Feature:
Front-entry
Feature:
Rear-entry
Feature:
Key Features
• 2 Master Suites
• Double Vanity Sink
• Guest Suite
• His and Hers Master Closets
• Master Bdrm Main Floor
• Master Bdrm Upstairs
• Separate Tub and Shower
• Sitting Area
• Walk-in Closet
• Breezeway
• Covered Front Porch
• Covered Rear Porch
• Front Porch
• Rear Porch
• Basement
• Crawlspace
• Slab
• 2 Story Volume
• Dining Room
• Family Room
• Fireplace
• Formal LR
• Foyer
• Laundry 1st Fl
• Library/Media Rm
• Loft / Balcony
• Open Floor Plan
• Rec Room
• Storage Space
• Vaulted Ceilings
• Butler's Pantry
• Kitchen Island
• Nook / Breakfast Area
• Peninsula / Eating Bar
• Walk-in Pantry
Plan: 56-04, 2 story, 5,669 total square footage
Close
It looks like you don't have a Flash player installed.
Click here
to go to Adobe download page.