Cart
Quick Contact:
830-730-0246
Belk Design and Marketing LLC
Advanced Search
Browse Collections
Services
Texas Collection
About Us
Contact Us
Plan Details
|
Print Plan
|
Modify Plan
|
Reverse Plan
|
Return to Your Search
Details
|
See Reverse
|
3D
|
Modify
|
Back to Search
See all 4 photos and rear view
© copyright by designer
Plan: 50-08 Deauville
Plan Specification
Total Square Footage:
5,016
Main Level:
3,230
Second Level:
1,786
Bedrooms:
4
Baths:
5 Half: 2
Garages:
3
Width/Depth:
93 ft / 76 ft
Foundation:
Basement, Crawl Space, Daylight Basement, Slab
View typical construction drawing >
© copyright by designer
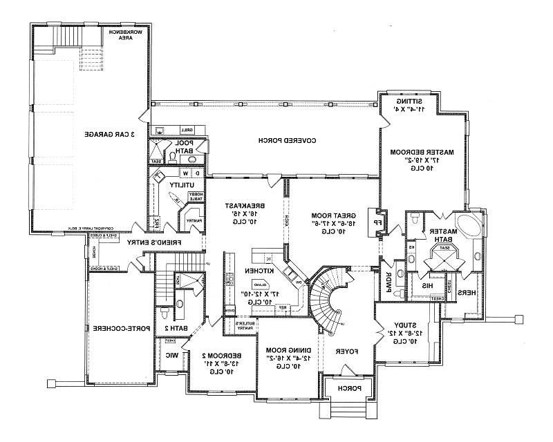
First Floor Plan:
© copyright by designer
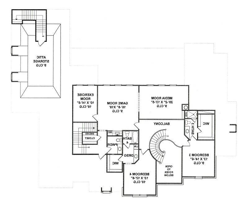
Second Floor Plan:
Purchase Plans
House Plan Pricing
PDF Bid Set
$1,740.00
PDF Single Build
$2,750.00
PDF + MOD License Single Build
$3,795.00
CAD FILE Plus PDF
$4,375.00
More details about our plan packages
Foundation Options
Slab
$0.00
Crawl Space
$400.00
Daylight Basement
$450.00
Basement
$500.00
Additional Plan Options
Full Reverse
$375.00
2x6 Exterior Walls
$375.00
Add 1 Garage Bay
$250.00
Remove 1 Garage Bay
$250.00
Plan Details
General House Information
2
Number of Stories:
93' 4"
Width:
76' 2"
Depth:
Single
Dwelling Number:
Exterior Style
Luxury
Number of Rooms
4
Bedrooms:
5
Full Baths:
2
Half Baths:
Finished Square Footage
3,230 Sq. Ft.
Main Level:
1,786 Sq. Ft.
Upper Level:
5,016 Sq. Ft.
Total:
Unfinished Square Footage
1362 Sq. Ft.
Garage:
647 Sq. Ft.
Porch:
Foundation
Basement
Crawl Space
Daylight Basement
Slab
Framing Information
Stick
Roof Framing:
2x4
Exterior Wall Framing:
Insulation (R)
0
Exterior Wall:
0
Interior Wall:
0
Ceiling:
0
Floor:
GARAGE
Rear
Garage Location:
3
Garage Size:
Attached
Feature:
Side-entry
Feature:
Key Features
• Double Vanity Sink
• Guest Suite
• His and Hers Master Closets
• Master Bdrm Main Floor
• Separate Tub and Shower
• Sitting Area
• Split Bedrooms
• Walk-in Closet
• Breezeway
• Covered Front Porch
• Covered Rear Porch
• Front Porch
• Rear Porch
• Basement
• Crawlspace
• Slab
• 2 Story Volume
• Dining Room
• Exercise Room
• Fireplace
• Foyer
• Great Room
• Home Office
• Laundry 1st Fl
• Library/Media Rm
• Loft / Balcony
• Open Floor Plan
• Rec Room
• Storage Space
• Unfinished Space
• Vaulted Ceilings
• Workshop
• Butler's Pantry
• Kitchen Island
• Nook / Breakfast Area
• Peninsula / Eating Bar
• Walk-in Pantry
Plan: 50-08, 2 story, 5,016 total square footage
Close
It looks like you don't have a Flash player installed.
Click here
to go to Adobe download page.