Cart
Quick Contact:
830-730-0246
Belk Design and Marketing LLC
Advanced Search
Browse Collections
Services
Texas Collection
About Us
Contact Us
Plan Details
|
Print Plan
|
Modify Plan
|
Reverse Plan
|
Return to Your Search
Details
|
See Reverse
|
3D
|
Modify
|
Back to Search
See all 6 photos and rear view
© copyright by designer
Plan: 31-25 Mineral Wells
Plan Specification
Total Square Footage:
3,165
Main Level:
2,702
Second Level:
463
Bedrooms:
3
Baths:
3 Half: 1
Garages:
2
Width/Depth:
85 ft / 73 ft
Foundation:
Basement, Crawl Space, Daylight Basement, Slab
View typical construction drawing >
© copyright by designer
First Floor Plan:
© copyright by designer
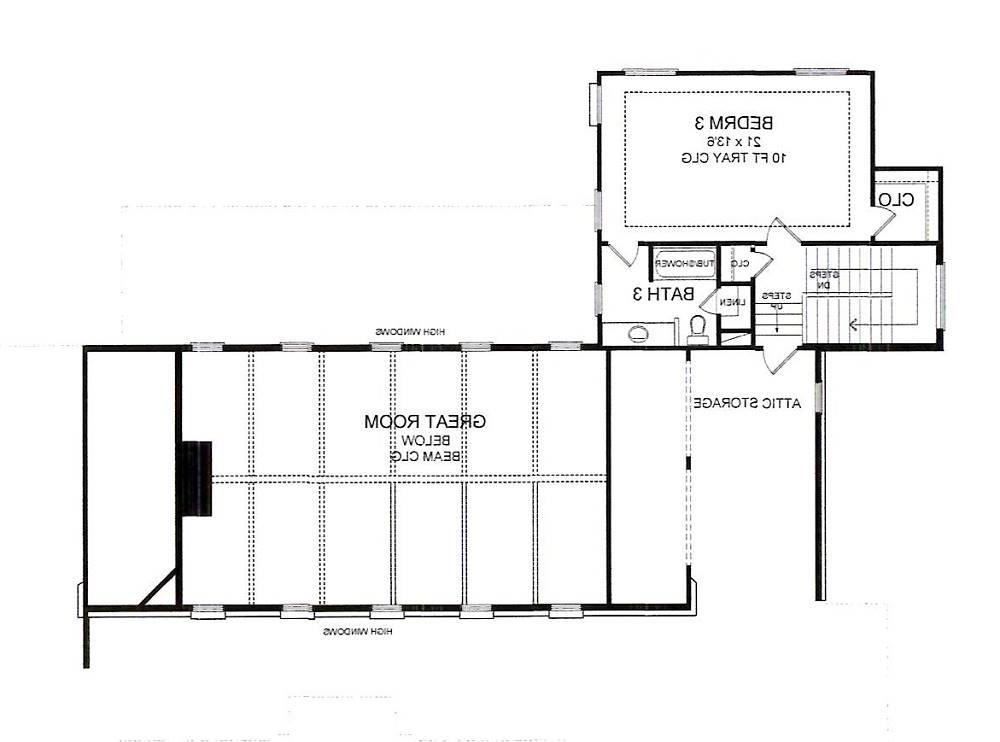
Second Floor Plan:
Purchase Plans
House Plan Pricing
PDF Bid Set
$1,500.00
PDF Single Build
$2,475.00
PDF + MOD License Single Build
$3,595.00
CAD FILE Plus PDF
$3,900.00
More details about our plan packages
Foundation Options
Slab
$0.00
Crawl Space
$400.00
Daylight Basement
$425.00
Basement
$475.00
Additional Plan Options
Full Reverse
$375.00
2x6 Exterior Walls
$375.00
Add 1 Garage Bay
$250.00
Remove 1 Garage Bay
$250.00
Plan Details
General House Information
2
Number of Stories:
85' 1"
Width:
73' 0"
Depth:
Single
Dwelling Number:
Exterior Style
Luxury
OtherCustom
Number of Rooms
3
Bedrooms:
3
Full Baths:
1
Half Baths:
Finished Square Footage
2,702 Sq. Ft.
Main Level:
463 Sq. Ft.
Upper Level:
3,165 Sq. Ft.
Total:
Unfinished Square Footage
596 Sq. Ft.
Garage:
659 Sq. Ft.
Porch:
Foundation
Basement
Crawl Space
Daylight Basement
Slab
Framing Information
Stick
Roof Framing:
2x4
Exterior Wall Framing:
Insulation (R)
0
Exterior Wall:
0
Interior Wall:
0
Ceiling:
0
Floor:
GARAGE
Front
Garage Location:
2
Garage Size:
Attached
Feature:
Front-entry
Feature:
Side-entry
Feature:
Key Features
• Double Vanity Sink
• Guest Suite
• His and Hers Master Closets
• Master Bdrm Main Floor
• Separate Tub and Shower
• Split Bedrooms
• Walk-in Closet
• Covered Rear Porch
• Front Porch
• Rear Porch
• Basement
• Crawlspace
• Slab
• 2 Story Volume
• Dining Room
• Fireplace
• Foyer
• Great Room
• Laundry 1st Fl
• Loft / Balcony
• Mud Room
• Open Floor Plan
• Storage Space
• Vaulted Ceilings
• Kitchen Island
• Peninsula / Eating Bar
• Walk-in Pantry
Plan: 31-25, 2 story, 3,165 total square footage
Close
It looks like you don't have a Flash player installed.
Click here
to go to Adobe download page.