Belk Design and Marketing LLC
Cart

Quick Contact: 830-730-0246  
        cart
Details | See Reverse | 3D | Modify | Back to Search
Front View 1st Floor
© copyright by designer

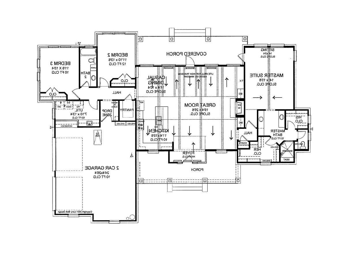
Plan: 22-25CP La Rana II

Plan Specification
Total Square Footage: 2,236
Main Level: 2,236
Bedrooms: 3
Baths: 2 Half: 0
Garages: 2
Width/Depth: 83 ft / 58 ft
Foundation: Basement, Crawl Space, Daylight Basement, Slab
© copyright by designer 
1st Floor:
1st Floor
Similar plans: 22-24
House Plan Pricing
$1,260.00
$1,995.00
$2,750.00
$3,295.00
Foundation Options
$0.00
$350.00
$375.00
$400.00
Additional Plan Options
$300.00
$300.00
$250.00
$250.00
Plan Details
General House Information
1
Number of Stories:
83'
Width:
58'
Depth:
Single
Dwelling Number:
Exterior Style
Concept Plan
Contemporary
Country
Farmhouse
Southern
Traditional
Number of Rooms
3
Bedrooms:
2
Full Baths:
Finished Square Footage
2,236 Sq. Ft.
Main Level:
2,236 Sq. Ft.
Total:
Unfinished Square Footage
758 Sq. Ft.
Garage:
547 Sq. Ft.
Porch:
Foundation
Basement
Crawl Space
Daylight Basement
Slab
House And Ceiling Heights
10
First Floor Ceiling:
Framing Information
Stick
Roof Framing:
2x4
Exterior Wall Framing:
Insulation (R)
GARAGE
Side
Garage Location:
2
Garage Size:
Attached
Feature:
Side-entry
Feature:
With Living Space
Feature:
Key Features
• Double Vanity Sink
• His and Hers Master Closets
• Master Bdrm Main Floor
• Sitting Area
• Split Bedrooms
• Walk-in Closet
• Covered Front Porch
• Covered Rear Porch
• Front Porch
• Rear Porch
• Fireplace
• Foyer
• Great Room
• Laundry 1st Fl
• Mud Room
• Open Floor Plan
• Kitchen Island
• L-Shaped
• Nook / Breakfast Area
• Peninsula / Eating Bar
• Walk-in Pantry
• Suited for corner lot
Copyright © Belk Design and Marketing LLC. All rights reserved. Belk Design and Marketing would like to take this opportunity to clarify the copyright laws for house plans. Copyright and licensing of house plans exist to protect all parties. It respects and supports the intellectual property of the original architect or designer. Belk Design and Marketing holds the copyrights to all images and house plans on this site. The law prevents anyone from reproducing or reusing illustrations, house plans or working drawings by any means without written permission from Belk Design and Marketing. The purchase of a set of house plans does not transfer any copyright or ownership interest except for a one-time license for the purchaser to build the home. Thank you for allowing Belk Design and Marketing the opportunity to be part of your home plan dream.