Belk Design and Marketing LLC
Cart

Quick Contact: 830-730-0246  
        cart
Details | See Reverse | 3D | Modify | Back to Search
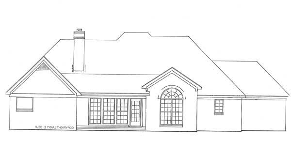
Front View Front Rendering Rear Rendering Floor Plan
© copyright by designer

Plan: 19-23 Milan

Plan Specification
Total Square Footage: 1,932
Main Level: 1,932
Bedrooms: 3
Baths: 2 Half: 0
Garages: 2
Width/Depth: 65 ft / 53 ft
Foundation: Basement, Crawl Space, Daylight Basement, Slab
© copyright by designer 
Floor Plan:
Floor Plan
Similar plans: 18-11, 20-20, 19-24
House Plan Pricing
$1,140.00
$1,565.00
$2,600.00
$2,995.00
Foundation Options
$0.00
$350.00
$375.00
$400.00
Additional Plan Options
$300.00
$300.00
$250.00
$250.00
Plan Details
General House Information
1
Number of Stories:
65' 10"
Width:
53' 5"
Depth:
Single
Dwelling Number:
Exterior Style
Old House Classics
Farmhouse
French Country
Mediterranean
Ranch
Number of Rooms
3
Bedrooms:
2
Full Baths:
Finished Square Footage
1,932 Sq. Ft.
Main Level:
1,932 Sq. Ft.
Total:
Unfinished Square Footage
552 Sq. Ft.
Garage:
225 Sq. Ft.
Porch:
Foundation
Basement
Crawl Space
Daylight Basement
Slab
House And Ceiling Heights
10
First Floor Ceiling:
22' 6"
Maximum House Height:
Framing Information
Stick
Roof Framing:
2x4
Exterior Wall Framing:
Roof Pitch
8/12
Primary:
Insulation (R)
Per IRC Climate Zones
GARAGE
Side
Garage Location:
2
Garage Size:
Attached
Feature:
Side-entry
Feature:
Key Features
• Double Vanity Sink
• Master Bdrm Main Floor
• Separate Tub and Shower
• Walk-in Closet
• Covered Front Porch
• Front Porch
• Rear Porch
• Basement
• Crawlspace
• Slab
• Arches
• Dining Room
• Family Room
• Fireplace
• Foyer
• Laundry 1st Fl
• Open Floor Plan
• Storage Space
• Nook / Breakfast Area
• Peninsula / Eating Bar
• Suited for corner lot
Copyright © Belk Design and Marketing LLC. All rights reserved. Belk Design and Marketing would like to take this opportunity to clarify the copyright laws for house plans. Copyright and licensing of house plans exist to protect all parties. It respects and supports the intellectual property of the original architect or designer. Belk Design and Marketing holds the copyrights to all images and house plans on this site. The law prevents anyone from reproducing or reusing illustrations, house plans or working drawings by any means without written permission from Belk Design and Marketing. The purchase of a set of house plans does not transfer any copyright or ownership interest except for a one-time license for the purchaser to build the home. Thank you for allowing Belk Design and Marketing the opportunity to be part of your home plan dream.